Email: caoi.ir@post.com Telegram ID: @caoiran

ورود

Slide 1
در این بخش به معرفی آثار منتخب معماران ایرانی طراحی و ساخته شده در داخل و خارج از ایران می پردازیم. دامنه نمایش آثار از اواخر دوران قاجاریه تا به امروز می باشد.
به منظور انتشار آثار خود، لطفا از طریق ایمیل با ما در ارتباط باشید.
Shadow

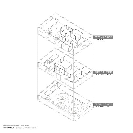
کارخانه نوآوری رنگ لیان

خواندن 558 دفعه آخرین ویرایش در سه شنبه, 03 دی 1404 18:06