Study
آغازگران معماری امروز ایران
گفتگو سهیلا بسکی با مهندس منوچهر سلیمانی پور
فصلنامه آبادی - سال پنجم شماره هفدهم تابستان 1374-صفحات 77-72


گفتگو با «آغازگران معماری امروز ایران» را در شماره پیشین آبادی آغاز کردیم. در این شماره با آقای مهندس منوچهر سلیمانی پور گفتگو کرده ایم که فارغ التحصیل دانشکده هنرهای زیبای تهران در سال ۱۳۳۲ و استادیار بعدی همین دانشکده بوده اند.
آقای مهندس سلیمانی پور، متشکریم از فرصتی که برای گفتگو در اختیار ما گذاشته اید. همان طور که در آبادی ۱۶ ملاحظه کردید، برای گشودن باب بحث درباره معماری معاصر ایران، صفحاتی از مجله به گفتگو با آغازگران معماری امروز ایران، با هدف پیشینه یابی آثار معماران معاصر اختصاص یافته است. خواهشمندیم اگر موافقید ابتدا نظرتان را دربارۀ مفهوم واژه «معاصر» در عبارت «معماری معاصر» بفرمایید. آیا از نظر شما این واژه بر مجموعه ای از مشخصه های کیفی یا کمی در نوعی معین از معماری دلالت دارد که آن را از معماری ما قبل آن متمایز می سازد؟ و اگر چنین است آن مشخصه ها چیستند؟
به نظر من می توان ضوابطی را برای تشخیص معاصر بودن یا نبودن معماری برشمرد و یک ضابطۀ عینی تشخیص معماری معاصر از معماری ما قبل آن بی تردید اعمال تکنولوژی جدید است. مثلاً احداث نخستین کوره های آجر فشاری در ایران، یا نخستین کارخانه سیمان، و احداث اولین ساختمانهای بتن آرمه در ایران را می توان آغاز دوره معاصر تلقی کرد. البته ما در ایران در گذشته هم آجر داشتیم و آجرهای خوبی هم داشتیم، اما آجر فشاری و کوره های تولید آن قبلا در ایران نبود. کیفیت این آجرهای فشاری قدیمی در حدی بود که در نمای ساختمان هم به خوبی می شد از آنها استفاده کرد. اتفاقاً متن گفتگو با دکتر کباری که در شماره پیش آبادی چاپ شد، این موضوع را برایم یادآوری کرد که اولین برنامه مدرن کردن ایران راه سازی بود که توسط وزارت راه اجرا شد. اولین مشخصات فنی هم که برای کار معماران حائز اهمیت بسیار است، در وزارت راه تهیه شد. در این فهرست مشخصات نوع بنایی، نوع ملات و موارد مشابه مشخص شده بود. پیش از آن، مشخصات فنی تدوین شده نداشتیم. البته شرکتهای خارجی وقت از مشخصات فنی خودشان که دقیقا غربی بود استفاده می کردند. در واقع به همین دلیل می توان گفت که معماران با مهندسانی که در وزارت راه کار کرده اند، مستقیم یا غیرمستقیم به ایجاد یک معماری جدید خدمت کرده اند مستقیم از طریق ساختن ایستگاههای راه آهن، و غیرمستقیم از طریق تدوین مشخصاتی که در آنها نحوه ریختن بتن، یا حتی شفته که سنتی بود، مشخص شده بود. بعدها مهندس فروغی در زمانی که تصدی ریاست دانشکده را به عهده داشت و استاد ما بود، مسئولیت دفتر مهندسی بانک ملی را هم به عهده گرفت. ما گاهی برای دیدنش به آنجا می رفتیم. در همان جا اولین مشخصات تطبیق یافته فنی برای معماری تنظیم گردید که ملاک ارزشیابی کیفیت فنی، استواری و ایمنی ساختمان بود. در دفتر فنی بانک ملی چند آرشیتکت خوب از جمله - اگر درست به یاد داشته باشم -گریگوریان با ایشان کار می کردند. در عین حال جالب است در همین جا یادآوری کنم که در این مشخصات شفته ریزی را هم با روشهای سنتی محض ایران مشخص کرده بودند. شفته ریزی کار ساده ای نیست. شفته پی بسیار خوبی است و در واقع نوعی بتن است، منتهی نحوه ريختن آن، درجه حرارت مناسب هوا برای تعیین زمان ریختن شفته، میزان آهک، یا نوع ماسۀ آن، بسیار مهم است، در حالی که هنوز هم خیلی ها به جای ماسه خاک عادی می ریزند که نادرست است. یا طرز تیشه داری آجر، که کاملاً سنتی است و حجاریهای روی آجر برای نما را به این روش انجام می دهند، در این مشخصات بود و با مشخصات وزارت راه این تفاوت را داشت که شامل خیلی از کارهای معماری می شد که در مشخصات وزارت راه لازم نبود.
دومین مشخصۀ معماری معاصر از نظر من مطرح شدن کارکردها (فونکسیون ها) و عملکردهای جدید برای ساختمانهاست. من به دلیل اشتغال در دانشگاه اجازه تأسیس شرکت نداشتم، اما در دفاتر زیادی کار کرده ام و سه دهه فرصت داشته ام تا با رده بندی انواع ساختمانها آشنا شوم. بنابراین، به خوبی وسعت دامنه معماری را درک کرده ام و این واقعیت را نیز که تیپولوژی ساختمانها در تعریف معماری بسیار مؤثر است. مثلا من پروژۀ ۴ کشتارگاه مدرن را دادم، که در طراحی آنها ناچار بودم به عملکرد و کارکرد کشتارگاهها توجه کنم، نه فقط برای حیواناتی که در آنجا کشته می شدند! بلکه به خاطر انسانهایی که در آنجا کار می کردند. روی نقشه ترمینال اهواز هم کار کرده ام و طرح چندین شعبه بانک بازرگانی را داده ام و همین طور نقشه چند بیمارستان را برای مؤسسات خیریه وقت کشیده ام. نمونه بیمارستان برای معماران بسیار آموزنده است، چون معمار باید با دقت و همت و حوصله تمام تجسم کند که بر پرستارهای پزشکان، کارکنان، بیماران و عیادت کنندگان در این بنا چه می گذرد. من حتی طرح نوانخانه هایی را برای مراکز استانها دادم که باید خیلی ارزان تمام می شد. در همه این طرحها استانداردهای حداقل لازم را در نظر می گرفتیم. در دانشگاه هم طی مباحث انتقادی توجه فراوان به این جنبه از معماری یعنی «فونکسیونالیسم» می کردند و در خارج از دانشگاه هم بر نقش اساسی آن در طراحی تاکید می شد. در دانشکده هنرهای زیبا با استادی داشتیم به نام مهندس بابلاویان که تحصیلکردۀ بلژیک بود. استاد بسیار خوب و محبوبی بود و برآورد قیمت ساختمان و نقشه برداری درس می داد. اما خارج از وظایف اصلی خود خدمت بزرگی به ما کرد. در واقع توجه به رده بندی ساختمانها را او به ما آموخت. ۱۳ تیپ ساختمان را به ترتیب زیر برای ما مشخص کرده بود که به ترتیب حروف الفبا عبارت بودند از:
۱. آموزشی
۲. اداری اعم از دولتی با خصوصی
٣. ارتباطات مثل مخابرات
۴. اماکن پذیرایی مثل مهمانسرا با رستوران
۵. بازداشتگاهها و مؤسسات مختلف تاُدیبی
۶. بانکها
۷. بهداشتی
۸. تجاری
۹. تفریحی مثل پارک کودکان، باشگاههای جوانان، کارگران و کارمندان و...
۱۰. حمل و نقل
۱۱. صنایع از کارگاههای کوچک گرفته تا نیروگاهها، پالايشگاهها، مجتمعهای بزرگ صنعتی...
۱۲. عبادتگاهها و زیارتگاهها
۱۳. علمی مثل رصدخانه ها،آزمایشگاههای تحقیقاتی و غیره.
من میتوانم به این فهرست ۶ مورد دیگر را هم بیفزایم:
۱۴. فرهنگی مثل فرهنگستانها،کتابخانه ها، موزه ها، نمایشگاهها و ...
۱۵. مسکونی
۱۶. مقبره ها و گورستانها
۱۷. نمایشی مثل تماشاخانه ها، سینماها ،تئاترها، تالارهای موسیقی و...
۱۸. ورزشی
۱۹. یادبودی یا منومانتال
البته بدیهی است که هر یک از رده های فوق طیفی از ساختمانها و مجموعه ها را در بر می گیرند. تعدادی از انواع این ساختمانها را می توان برحسب نیاز و هدف با یکدیگر ادغام کرد، لذا شناخت ویژگیها و نمونه های هریک از آنها برای تأمین همکاری مفید و مؤثر مهندسان معمار لازم به نظر می رسد. مفهوم مهندس معمار می تواند در برگیرنده یک فرد یا یک گروه همکار و صالح و مسئول باشد. اما مطالعات اولیه، تدوین برنامه، طراحی و نظارت در اجرا و بررسی انواع مختلف بناها، به دلیل آنکه در شرایط زندگی انسانها تأثیر دراز مدت می گذارد و از نظر اقتصادی و عاطفی برای جوامع اهمیت دارد، باید با همکاری مهندسان معمار در سراسر مراحل انجام شود.
به هرحال این مهندس بابلاویان بود که به ما آموخت قضاوت درباره تیپهای مختلف ساختمان به طور یکسان ممکن نیست. مثلاً ساختمان یادبود را با ضوابط مربوط به بیمارستانها یا ساختمانهای صنعتی نمی توان ارزیابی کرد. و باید توجه کنید که در ایران هنوز مثلاً نقش معماران در طراحی ساختمانهای صنعتی محدود است. خود من در چند مورد محدود در طراحی ساختمانهایی برای صنایع همکاری داشتم، ولی با خبر بودم که معماران و حتی گرافیستها برای ساختمانهای کارخانه رنو فرانسه خدمات هنری ارائه داده بودند، البته با رعایت مقررات سخت صنعتی و تولیدی، یکی از شاهکارهای آلوار آلتو، معمار معروف فنلاندی، ساختمان کارخانه های کاغذسازی از چوب جنگلی فنلاند است. آرشیتکت سارینن در آمریکا آزمایشگاههای جنرال موتورز را به شکل یک اثر معماری، اما بر طبق اصول کاملاً منطقی و صنعتی ساخت که در مجلات غربی به عنوان نمونه های زیبای ساختمانهای صنعتی معرفی شدند.به هر حال در ایران هم با مطرح شدن این عملکردهای جدید، خیلی از الگوهای اداری، بیمارستانی، بانکی، حمل و نقل با الگوهای «فونکسیونل» از روی نمونه های خارجی رایج شدند.
از نظر شما پارامترهای هنری هم برای متمایز کردن معماری معاصر از معماری ماقبل آن وجود دارد یا خیر؟
یک پارامتر کاملا ذهنی، انسانی و عاطفی همان ذوق زمان و عرف تشخیص است. از دوران روم باستان بعضی چیزها به طور خودکار زیبا تلقی می شدند، مثلاً ستون کُرنتین، و هر ساختمانی که ستون نداشت یک درجه پست تر تلقی می شد. این ذوق که عرف را هم شامل می شود، در دوره قبل از معاصر، در مورد معماری و هنرهای وابسته به آن مثلا کاشیکاری و گچبری و غیره وجود داشت و یک نوع ذوق سنتی بود. اما در دوران بعدی ذوق فرنگی هم مطرح شده بود که در ایران سخت به وسیله قشر مرفه وقت ترویج می شد. هرچه فرنگی بود خوب بود و این ذوق و عرف تشخیص دامنۀ وسیعی داشت از بسیار مبتذل تا بسیار کمال طلب. در واقع ذوق واحدی موجود نبود، بلکه سیال و در جریان بود. مثلاً زبان فارسی که اساس فرهنگ ایرانی است، در زمان پهلوی اول تحولات زیادی پیدا کرد. بسیاری واژه ها مثل دبیرستان، دبستان، گذرنامه، پادگان که قبلا معادل عربی داشتند ساخته شدند. همین تحول در بعد از انقلاب اسلامی هم صورت گرفت و بعضی از واژه های قدیمی دوباره احیا شدند. مثال زبان در مقایسه با بیان معماری مثال خوبی است، زیرا همان طور که زبان فارسی با شتاب تحول پیدا می کند، معماری هم که نوعی بیان با ضوابط بسیار بسیار متفاوت است، پیوسته در حال تحول بوده و هست. به نظر من دو اصل شکل یابی هنری برای ابنيۀ معماری در غرب و در شرق وجود داشته و دارد. یکی تقلید و بدل سازی بسیار بی معنی، و یکی تقلید از نمونه های خوب. در غرب هم همین تجديد حياتها (revivals) مطرح بودند، مثلا سبکهای نئوکلاسیسم، نئوگوتیک و غیره شکل می گرفتند که تقلیدهایی از نمونه های پیشین بودند. در کشور ما هم دو عکس موجود از دروازه قرآن شیراز نشان میدهند که دروازه دوره زندیه تقلید بسیار ضعیفی بود از سبک سنتی با تناسبات بد، اما دروازه بعدی که بعد از خراب کردن دروازه قدیم برای عبور ترافیک در آغاز دوره معاصر و به طریق سنتی ساخته شد. باز هم با همان کاشیکاری، طاقچه ها و پایه های آجری بسیار جا افتاده است. این دروازه را مهندسی ساخته که نامش را به یاد ندارم، اما ظاهراً او هم مثل مهندس مارکف کوشیده است تلفیقی میان معماری نو با معماری سنتی پدید آورد. مهندس مارکف در طرح کالج البرز، تقلیدی منصفانه و صادقانه از معماری سنتی ارائه داده (البته تقلید به هر حال تقلید است) ، اما بعضی کارهای مارکف التقاط سبکهای ناهماهنگ هم بود، مثلا ساختمان شهربانی کل کشور. او در این بنا با ادغام سرستونها و ستونها و ایوانهای تخت جمشیدی با کاشیکاری و طاق اسلامی کاری التقاطی ارائه داده که اصالت ندارد. مهندس فروغی بانک ملی شعبه بازار و کرج و شعب دیگر بانک را به شیوه ای به مراتب ساده تر از معماری سنتی بخصوص معماری قاجاری طراحی کرد. همان ایوان که عنصر مهم معماری سنتی ایران است در آن حفظ شده و کاشیکاری داخل ایوان به طور کاملا منطقی قرار گرفته بود، چون کاشی در معرض برف و باران و آفتاب دوام چندانی نمی آورد، اما زیر ایوان خوب می ماند. اینها همه کوششهایی تقلیدی یا ترکیبی بودند.
اما در کنار اینها مهندسان آلمانی و چک و غیره هم بودند که برای راه آهن یا ساختمانهای دیگر، مثلا وزارت امور خارجه که با سنگ سپید ساخته شده، از الگوهای معماری غربی وقت استفاده می کردند که نظیرش در اروپا و آمریکا هم هست و در آن از کاشی و طاق اثری دیده نمی شود. به هر حال، به نظر من ذوق زمان و عرف قضاوت که یکی از ضوابط تشخیص ارزش هنری معماری است، در زمان ما ضابطه ای جاری و سیال و متحرک است.
واکنش استاد معماران سنتی ایران در مقابل مطرح شدن تکنیکهای جدید چه بود؟
استاد معماران سنتی ایران فقط در بعضی موارد و گاه خیلی کند با این تکنیکهای جدید آشنا شدند. مثلا پوشش نما با سنگ تراورتن که در معماری ما نبود، خیلی مسائل اجرایی داشت و استادکارهای ما در حین کار با مهندسان و تکنیسین های خارجی با ایرانی مشخصات کار را یاد می گرفتند. اما هنوز هم ضوابط این کار، شاید از آنجا که در معماری سنتی ایران نبوده بسیار ناقص است، در حالی که این کار در اروپا و آمریکا از چند قرن پیش معمول بوده است. برای مثال، وقتی صفحه سنگی به نما وصل می شود، حتما باید با گیره هایی از فلز مخصوص آن را به بنایی ساختمان محکم کنند، و چسباندن با دوغاب سیمان پشت آن قابل قبول نیست. اما در تهران هنوز این کار را می کنند. به هر حال این نکته ای است که بسیاری از معماران هنرمند که آقای مهندس هاشمی هم در سر مقاله خود به آنها اشاره کرده اند، از آن غافل می مانند. این معماران می گویند که وارد شدن به این «جزئیات فنی» کار ما نیست؛ اینها را به مهندسان فنی وتکنیسین ها می سپاریم و ما فقط ایده معماری را میدهیم. این مسئله در نقد معماری هم تاثیر می گذارد: آیا معمار کسی است که مهندس اجرا هم هست (چه از نظر معلومات و چه از نظر تجربیات)، یا فقط هنرمندی است که تصاویری از کمال مطلوب خود را خلق می کند؟ حتی این مسئله در تعریف معماری هم تأثیر می گذارد. به نظر من معماری تنها به تأثیر بصری کار محدود نمی ماند، تأثیر کاربردی و اقتصادی آن هم مطرح است که می تواند تحسین یا تکذیب را، درست مانند تأثیر بصری نما، برانگیزد. مردم این جنبه ها را به خوبی تشخیص می دهند، چون ناچارند در این بناها زندگی با کار کنند. ما که آپارتمان نشین هستیم، به خوبی تشخیص می دهیم که این خانه طوری ساخته شده که برای سازنده ارزان تمام شود، اما گرمایش و سرمایش و تأمین روشنایی در آن بار گزاف مالی برای مصرف کننده دارد. ويتروویوس در روم قدیم یکی از ضوابط ارزیابی معماری را convenience یا مناسب بودن آن می داند که فقط به معنای راحتی نیست، به معنای تناسب و هماهنگی هم هست، یعنی تناسب و هماهنگی بنا با عملکرد آن و هر چه بنا متناسبتر باشد، قابل تحسین تر می شود.
آیا شما نام برخی از معماران این دوره و کارهایشان را به یاد دارید؟
قبلا هم در مصاحبه ای در آبادی عرض کردم که من از نیمه راه سوار قطار معماری معاصر ایران شدم. دکتر کباری و کسانی مانند ایشان زمان مبدأ را بسیار بهتر از من می شناسند. حتی تحصیلات اولیه من در لبنان نه در رشته معماری که مهندسی سیویل (راه و ساختمان) بود. بنابراین، اطلاعات من درباره شخصیتهای پیشگام معماری معاصر چندان زیاد نیست. شاید بهتر باشد به جای پاسخ به سؤال شما، مرزی را در مسیر تحول معماری معاصر ایران مشخص کنم که به نظر من جنگ جهانی دوم است. قبل از جنگ دوم، نفوذ غرب از طریق تکنولوژی و فنون مهندسی و تا حدی هم معماری صورت می گرفت و بیشتر از طریق آلمانها و چکها (شرکتهای بزرگ اشکودا، لانا...) و انگلیسی ها در مناطق نفتخیز. مثلاً شرکت نفت که خود یک مؤسسه صنعتی بود با مشخصات فنی صد در صد غربی، استانداردهای فنی را در معماری هم رعایت می کرد. لوله کش ها، سیمکش ها و جوشکارهای شرکت نفت ایران و انگلیس بهترین لوله کشها و سیمکشها بودند. هنوز هم به ندرت شما لوله کش و سیمکشی را پیدا می کنید که با آن اصول فنی که در کوتاه مدت کمی گرانتر است، اما در بلند مدت صرفه های اقتصادی بسیار دارد، کار کند. این افراد در مدرسه فنی آبادان آموزش می دیدند. بعد از ملی شدن صنعت نفت سازمان تکنولوژیک و مشخصات فنی تهیه شده در آن به شرکت ملی نفت ایران به ارث رسید. البته در همین زمان کسانی هم بودند مانند مهندس مارکف که پناهنده مهاجر روس و آن قدر طرف اعتماد دربار ایران بود که گاه حتی در مقابل شاه و دربار هم می ایستاد. او کوشید ترکیب خاصی از معماری سنتی و غربی ارائه دهد، و در واقع تا حدود زیادی مستقل بود، گرچه از معماری دوره انحطاط روسیه هم که به طرز وحشتناکی التقاطی بود، تأثیر گرفته بود. مثلا کلیسای روسی مقابل سفارت سابق آمریکا را از روی الگوی کلیساهای سنتی روسیه ساخته است. ولی در نقطه دیگری از شهر در خیابان کوچک خان (استالین سابق) کلیسایی سنگی هم برای ارمنیها با مطالعه جزئیات سبک معماری ارمنی ساخته که سبک اصیلی است. افراد دیگری هم نظیر او بودند که حالا نامشان را به یاد نمی آورم.
بعد از جنگ، نفوذ غرب در معماری معاصر از طریق شرکتهای بزرگ مهندسان مشاور خارجی اعمال شد: آنتراتود ( Entre’tude) و ليچفیلد و وایتینگ (Litchfield & Whiting ) آمریکا که تحت پوشش اصل چهار ترومن کار می کرد، در زمینه های معماری وبهداشت، یا کاکز (Kocks) آلمان که تلفنخانه های وقت مثلا مرکز تلفنخانه های تهران و نارمک و ... را ساخت. مهندسان ایرانی هم در این شرکتها کار می کردند، ولی کار به اسم مؤسسه تمام می شد.
اما نکتۀ مهمی که از نظر حرفه معماری اهمیت دارد، وارد شدن ایدۀ مهندسی مشاور به ایران بود، چون قبل از جنگ معماران به صورت فرد عمل می کردند. البته دفاتر فنی اداره ها هم بودند. فرمول مهندسی مشاور برای حرفه معماری و حق الزحمه مشروع تثبیت شده برای معماران، بعد از جنگ مطرح شد. من در آن زمان با مهندس مقتدر و دیگران برای تشکیل انجمنی واقعی، نه فرمایشی، برای معماران کوششهایی کردیم و آنچه در آن زمان معماران را به مشارکت تشویق می کرد، اثبات مشروعیت حق معمار بود که از طریق مهندس فروغی (که وکیل مجلس هم بود) و دیگران به صورت قانونی عنوان شد که گام بزرگی بود، چون پیش از آن برای کار مهندس طراح و ناظر ارزش چندانی قائل نبودند. می گفتند چند خط روی کاغذ کشیده ای، کاری نکردی، زحمت را آنهایی می کشند که می سازند. به همین دلیل حتی خیلی مواقع پولی هم به معماران نمی دادند. حتی به مارکف هم برای خیلی از کارهایش پول ندادند.
به هرحال، در این مقطع زمانی، با ورود مهندسان مشاور خارجی به ایران، مهندسان ایرانی هم به فکر تأسیس شرکتهای مهندسی مشاور افتادند و سازمان برنامه نیز ضوابطی را برای مهندسان مشاور ایرانی و خارجی تعیین کرد. مثلاً برای خارجیها یک ضابطه مهم این بود که حتما شریک ۵۰٪ ایرانی داشته باشند و در مقابل برای ایرانیها هم در مورد بعضی طرحهای بزرگ و تخصصی حکم میشد که باید شریک خارجی داشته باشند.
دومین تحولی که بعد از جنگ در عرصه حرفه معماری رخ داد، افزایش تعداد مهندسان ایرانی تحصیلکرده در کشورهای غربی، بیشتر فرانسه، اتریش و آلمان بود. فروغی، گدار، آفتاندلیان ... همه از زمره این گروه بودند. کسانی مثل فروغی در آغاز کار کوششهای صادقانه ای کردند تا ثابت کنند استاندارد کارشان نه تنها از مشاوران خارجی چیزی کم ندارد بلکه بهتر هم هست. فروغی روی کاشیکاریها و طرحهای بانکها واقعا زیاد زحمت کشید. گرچه بعدها این انتقاد در مورد او و کسانی مانند فرمانفرمائیان مطرح می شد که به علت نفوذ اجتماعی تنها نقش واسطه برای گرفتن کار را ایفا می کنند و خودشان خطی نمی کشند. البته به نظر من آنها در این دوره زمانی نقش مهمی در قبولاندن طرحها و نظریات معماران به کارفرما داشتند که کاری واقعا مشکل بود. مثلا خود من با فروغی، صادق، ظفر و سیحون در طرح مجلس شورای ملی جدید همکاری کردم. فروعی از نفوذ خود استفاده می کرد و سیحون قرار بود ساختمان را بسازد و او هم مطالعات اولیه را به من که معمار جوانی بودم سپرده بود. من در جلساتی که رئیس مجلس هم در آن شرکت می کرد حضور داشتم. هربار او تکرار می کرد که باید در طرح مجلس ستونهای تخت جمشیدی بگذارید، مهندس فروغی با مهارت تمام، و با این استدلال که طرح باید همخوان با اصول فنی امروز باشد، از آن دفاع می کرد. در آن روزگار بدون نفوذ نمی شد طرح را قبولاند. کارفرما همه جا مداخله می کرد و در واقع در بعضی موارد کلاً کار معمار را پایمال می کرد. پس معماران بانفوذی مثل فروغی و فرمانفرمائیان و سیحون به حرفه معماری خدمت کردند. از نظر قانع کردن کارفرما، سازمان برنامه یا مثلا رئیس مجلس، و در ایجاد این زمینه که باید به نظر مهندس معمار هم احترام بگذارند گامهای بلندی به جلو برداشتند. اگر هم ضعفی پیش از انقلاب با امروز در این زمینه مشاهده می شود تقصیر خود معماران است که به خاطر منافع آنی تسلیم نظرهای غلط کارفرما می شدند و می شوند و هنر معماری را به ابتذال می کشند.
یک نکته مهم درباره خود آثار معماری در مورد بخش اول بحثمان بگویم: این آثار با آثار زمان ورود اولین تکنیکهای جدید در پیش از جنگ کاملا متفاوت بودند. کافی است مجموعه ساختمانهای باغ ملی سابق را در نظر بگیریم: وزارت امور خارجه، شهربانی كل کشور، دروازه و پستخانه (که گویا مارکف در طراحی آن دستی داشت). بنای سمت غرب دروازه را که اکنون بخشی از وزارت امورخارجه است در اصل مهندسان شرکت نفت ساخته اند. نقشه آن در دفتر فنی شرکت نفت تهیه شد و خیلی روی آن کار شده بود. اما بنای وزارت امور خارجه اولیه تقلیدی از سادگی نوپسندانۀ غربی در آن زمان است. شهربانی کل کشور ترکیبی است شخصی از سبکهای متفاوت با هم. معماری پستخانه سنتی اما ساده شده است و ریزه کاریهای آن از معماری سنتی، بخصوص معماری قاجاری، خیلی کمتر است. تنها فرزند مارکف که گاهی به ایران می آید می گوید مارکف این ساختمان را ساخته است. البته خیلی کارها را به مارکف نسبت می دهند، در حالی که در آن زمان بسیار اتفاق می افتاد که مراحل مختلف تکمیل یک ساختمان به مهندسان مختلف سپرده می شد. مثلاً خود من در دفتر سیحون کارهای زیادی انجام دادم ولی این کارها مال سیحون بود. خود او مسئول کارها بود. تنها در یک مورد اسم من هم به عنوان دستیار آرشیتکت در مجله معماری آمد و آن هم طرح کارخانۀ کانادا درای بود. البته من خود شاهد بودم که مهندس سیحون تا آنجایی که سایر فعالیتها و مسئولیتهای او وقتی برای این کار باقی می گذاشت شخصاً و با ذوق هنری بسیار معماری و شکل طرحها را مطالعه و تعیین می کرد.
تاثیر ورود تکنیکهای جدید و ذوقهای جدید را در معماری منطقه ای ایران چگونه ارزیابی می فرمایید؟
من قبلا هم در میزگرد داوران و طراحان مسابقه فرهنگستان اشاره کردم که معماری ایران را تا حدود زیادی از این نظر می توان با هنر قالیبافی مقایسه کرد. مثلاً قالی تبریز هویت خاصی دارد. یا قالی کاشان و اصفهان و ایلات بختیار و غیره.
اما باید توجه کرد که تکنولوژیها و کارکردها یا عملکردها در دنیای امروز، از جمله در کشور ما، فراگیر است و پایتخت و شهرستان و غیره نمی شناسد. سیمان و قیر را حتی روستاییان به کار می برند و با بلوکهای سیمانی، به همان سبک چینۀ گلی قدیمی خودشان چیزهایی می سازند. واقعیت این است که بلوک سیمانی را، چه در جزیرۀ لاوان، چه در رشت، چه در سنندج (که جزو مناطق سردسیر است) به کار می برند. تکنولوژی تا حد زیادی یکی از عوامل مهم تعیین کننده کیفیت کار معمار و تدابیر پیشنهادی اوست، مثلا اشکال مدور با بلوک سیمانی مناسب نیست.
از طرفی، مثلاً ایستگاههای راه آهن پدیده جدیدی در تاریخ ایران بود و الگوهای آن صددرصد از کشورهایی که راه آهن داشته اند می آمد. این است که تلفيق آنها با معماریهای منطقه ای بسیار دشوار تر می شد، ولی همان طور که دکتر کباری هم اشاره کردند که سبک متحدالشکل ایستگاههای راه آهن را که آلمانها داده بودند در مناطق مختلف با ویژگیهای منطقه تطابق داده اند، می شد این کار را کرد. مشترک بودن تکنولوژی و ضوابط فنی امکان بیان منطقه ای را محدود می کند گرچه از بین نمی برد؛ مثلا همین دفتر بانک ملی برای شهرستانهای مختلف بانکهایی به سبکهای مختلف می ساخت. همه یکنواخت نبودند. حتی بعضی ساختمانها استعداد این را دارند که برای آنها سبک منطقه ای پرورانده شود. از طرفی پیدایش سبکهای مشخص با هویت منطقه ای به ثبات نسبی روشهای کار در زمان نسبتاً دراز نیاز دارد و در شرایط فعلی که تحولات پی در پی فنی و اقتصادی و ذوقی با سرعت زیاد صورت می گیرد، به نظر من دست یافتن به چنین چیزی بعید است.
آقای مهندس خواهشمندیم اگر مایلید برخی از کارهای خود را برای خوانندگان ما معرفی فرمائید.
همان طور که عرض کردم، من در جریان سی سال همکاری با مهندسان معمار مستقل و یا با دفاتر مهندسان مشاور، مسئول طرحهای گوناگون . در حدود ۱۳۰ طرح کوچک و بزرگ بودم که اکثر آنها اجرا شده و تعدادی هم اجرا نشده است... اما با توجه به انصاف حرفه ای نمی توانم هیچ یک از طرحها را به عنوان طرح خود معرفی بکنم. از جانب دیگر سبک و سیمای معماری و هنری این طرحها عمدتا توسط مهندسانی که در استخدامشان بودم تعیین میشد و لزوما نمایانگر سلیقه هنری بنده نبود.
با این حال درباره اولین و آخرین ساختمانهایی که خود آنها را طرح و اجرا کرده ام می توانم چند نکته را در میان بگذارم.
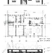
نخستین طرح بنده در زمانی که داشتم طرح نهایی خود را ( یک موزه هنرهای معاصر) در دانشکده تهیه می کردم - خانه پدرم در نارمک بود. با اینکه مانند اغلب معماران جوان آرزو داشتم که با استفاده از پیشرفته ترین دستاوردهای معماری جدید هنرنمایی بکنم، بی اختیار به سوی سبک معماری معمولی خانه هایی که سالهای نوجوانی را در آنها گذارنده بودم، کشیده شدم: نمای آجری، دیوارها و جرزهای حمال آجری، طاقچه های بیرونی و درونی، درها و پنجره های چوبی، فقط دو پنجره کوچک به طرف کوچه... با اینکه ساختمان یک طبقه بود، دیوارهای حمال نسبتا ضخیم اختیار کردم و چند تدبیر دیگر هم برای مقابله با خطر زلزله به کار بردم. چون قرار بود هزینه این ساختمان در حداقل معقول باشد، به جای مصالح و تزیینات نسبتا گران کوشیدم خود اجزای ساختمان و اندازه های بیرونی و درونی آن خوش تناسب باشد. مثلا در و پنجره ها چوبی بود، اما به گونه ای از سطح بیرونی نماها عقب نشسته بود که آفتاب در تابستان هرگز به درون اتاقها نرسد، در حالی که در زمستان آفتاب خیلی خوب به داخل اطاقها می تابید.
تجربه ای که در این نخستین کارم عاید من شد یادآور و مؤید این اصل مهم بود که صرفه جویی معقول در طرح و اجرای یک کار معماری می تواند به یک نوع زیبایی خاص معماری و عاری از عوامل تزیینی بینجامد، مشروط بر اینکه مهندس معمار وقت و دقت لازم را صرف مطالعه جزئیات و تنظیم تناسبات و اندازه های ساختمان کند که این اصل در دانشکده بارها مطرح شده بود. این نوع زیبایی که حتی در خانه های کوچک که با خشت و چینه و اندود کاهگل در نهایت صرفه جویی ساخته شده دیده می شود، مورد توجه هنرشناسان و هنرمندان بسیاری به ویژه نقاشان و عکاسان و فیلمسازان بوده و هست. من هنوز هم بر این عقیده ام که صرفه جویی منطقی و سنجیده در هزینه ها به جای اینکه دست و پاگیر خلاقیت معماران گردد، می تواند به زیبایی منحصر به هنر معماری و عاری از عناصر زینتی زاید بینجامد. البته ایجاد یک چنین بناهایی برای مهندس معمار گرانتر تمام می شود، چون وقت و کار بیشتری می طلبد.
چون قسمت پدرم نبود که در این خانه بنشیند، عاقبت خودم چند سالی در آن زندگی کردم و محاسن و معایب آن را از دیدگاه ساکنان نیز سنجیدم که البته معایبی هم داشت اما هزینه های نگهداری آن بسیار کم بود.
طی سالهای بعد و در کنار کارهای بزرگ و مدرنی که در دفاتر دیگران انجام میدادم، شب هنگام در منزل روی طرح خانه هایی که به طور کاملا منطقی با عناصر سنتی شکل می گرفت کار کردم. طرح اولیه نمای جنوبی در خانه دیگر را اتفاقا نگاه داشته ام. و اما آخرین کار کاملاً مستقل من خانه ای بود که بیست و پنج سال بعد از ساختن آن خانه پدر در میان یک باغ قدیمی شش هزار متری در الهیه ساخته شد و با وجود اینکه فقط سه اتاق خواب داشت سطح زیر بنای آن بیش از ۱۰۰۰ متر مربع بود (خانۀ اولی در زمینی به مساحت ۵۰۰ متر و با ۲۰۰ متر زیربنا ساخته شده بود).
به رغم وسعت باغ و ساختمان، من این خانه را هم حتی الامکان با عناصر سنتی یعنی همان در و پنجره چوبی، دیوارهای آجری حمال و قرنیز چوبی لبه بام طرح و اجرا کردم. صاحب این عمارت که کاملا با معماری معاصر اروپا آشنا بود، این طرح «ساده» را کاملا تایید کرد و توصیه کرد که از گچبری و کاشیکاری زینتی و رنگ آمیزی قرنیز خودداری شود. امروز هم خانه پدرم و هم خانه الهیه توسط مالكان جديد تخریب و در محل آنها بناهای پر تراکمی ساخته شده است. تنها چند قطعه عکس از خانه اخیر نزد من مانده است.
ضمن تشکر مجدد ، خواهشمندیم اگر نکته دیگری در نظر دارید بفرمایید.
ناگفته ها بسیارند، اما برای خاتمه گفتگو شاید یک تصویر مناسب باشد: امروز وقتی به« امروزهای» گذشته و دورنمای معماری معاصر کشورمان می نگرم آن را چون دریای متلاطمی می بینم که هریک از امواج کوچک و بزرگ آن نمادی از گرایشها و کوششهای فردی یا دسته جمعی معماران است، اما تفاوت اساسی در اینجاست که حرکات امواج اثری پایدار از خود به جای نمی گذارند، در حالی که آثار معماری با همه تقليدها، نوآوریها و تضادهایشان چون امواجی منجمد شده ما را احاطه می کنند.
سهیلا بسکی
